0

Rennes (35200) T4 SUD OUEST AVEC TERRASSE DE 49M2 - PARKING - OPPORTUNITE

Réf : RD687776 375 000 €

RIVE DROITE agence de RENNES - Yonathan Sourigon vous propose cette SUPERBE OPPORTUNITE A NE PAS MANQUER - TRES BON RAPPORT QUALITE/PRIX. Rennes SAINT YVES - Idéalement situé env 10 min à pied du METRO (750m), bus en bas de la résidence, commerces de la rue de Nantes à 400m, proximité du Parc de Bréquigny et des infrastructures sportives (piscine...) - 
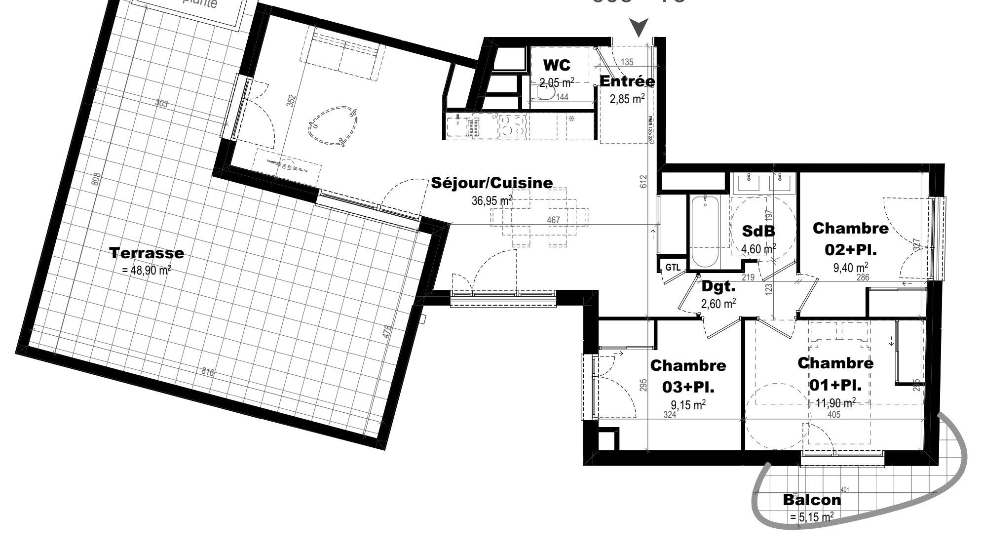
- Elegante résidence à l'architecture soignée, découvrez ce magnifique T4 avec TERRASSE DE 49M2 SUD OUEST  bien agencé, comprenant une belle pièce de vie donnant sur superbe terrasse 3 chambres dont une de plain pied, salle de bains, salle d'eau, wc, cellier, bureau ou grand dressing-  parking- Vous ETES PRIMO ACCEDANT ? Profitez du PRET a TAUX ZERO et de la TVA réduite à 5.5%, pour acquérir dans les meilleurs conditions cette belle opportunité - (Prix affiché en TVA 5.5%, sous reserve d'éligibilité, prix en TVA 20%: 426.540€)

Ses atouts:  Confort assuré - Prestations modernes de qualité - performances énergétiques - Emplacement recherché - Frais de notaire réduits - DISPONIBLE DEBUT 2027 -  Ce logement a toutes les qualités pour vous séduire - 

TRAD_SIROCCO_Caracteristique Valeurs
Code postal 35200
Surface habitable (m²) 80 m²
Surface loi Carrez (m²) 22 m²
Nombre de chambre(s) 3
Nombre de pièces 4
TRAD_SIROCCO_Caracteristique Valeurs
Nb de salle d'eau 1
Quartier Centre ville
TRAD_SIROCCO_Caracteristique Valeurs
Prix de vente honoraires TTC inclus 375 000 €
DPE GES
DPE ANCIENNE VERSION

Nos outils

Imprimer
Intéressé(e) par Ce bien ?

* Champ obligatoire

contacter l'agence

Les informations recueillies sur ce formulaire sont enregistrées dans un fichier informatisé par La Boite Immo agissant comme Sous-traitant du traitement pour la gestion de la clientèle/prospects de l'Agence / du Réseau qui reste Responsable du Traitement de vos Données personnelles. La base légale du traitement repose sur l'intérêt légitime de l'Agence / du Réseau. Elles sont conservées jusqu'à demande de suppression et sont destinées à l'Agence / au Réseau. Conformément à la loi « informatique et libertés », vous disposez des droits d’accès, de rectification, d’effacement, d’opposition, de limitation et de portabilité de vos données. Vous pouvez retirer votre consentement à tout moment en contactant directement l’Agence / Le Réseau. Consultez le site https://cnil.fr/fr pour plus d’informations sur vos droits. Si vous estimez, après avoir contacté l'Agence / le Réseau, que vos droits « Informatique et Libertés » ne sont pas respectés, vous pouvez adresser une réclamation à la CNIL. Nous vous informons de l’existence de la liste d'opposition au démarchage téléphonique « Bloctel », sur laquelle vous pouvez vous inscrire ici : https://www.bloctel.gouv.fr Dans le cadre de la protection des Données personnelles, nous vous invitons à ne pas inscrire de Données sensibles dans le champ de saisie libre.
Ce site est protégé par reCAPTCHA, les Politiques de Confidentialité et les Conditions d'Utilisation de Google s'appliquent.

Ces biens peuvent aussi vous intéresser
Rennes (35000)

RENNES - SAINT HELIER - PROX GARE - T4 - 3 CHAMBRES - DERNIER ETAGE...

Rennes (35000)

APPARTEMENT T3 - 2 chambres - Balcons - parking

Nous suivre sur